Eladó új építésű ház - Erdőkertes

Új építésű!
Új építésű
KAPCSOLAT
Turzó Bettina


+36 30 924

turzobettina@

Az időpont kérés naptár ikonja
IDŐPONTOT KÉREK
A visszahívás kérés telefon ikonja egy azt körbe ölelő nyíllal
VISSZAHÍVÁST KÉREK
Ajánlom egy ismerősömnek ikon
AJÁNLOM EGY ISMERŐSÖMNEK
Facebook megosztás ikon
MEGOSZTÁS

KAPCSOLATFELVÉTEL

Küldés

Az üzenetet sikeresen elküldtük!
Hiba történt!
INGATLAN ADATAI

Ingatlan jellege

családi ház

Belső terület

113 m²

Telek terület

1000 m²

Tájolás

délkelet

Építési állapot

új

Építési mód

tégla

Szobák száma

5 szoba

Terasz

15 m²

Épület szintje

1.

Épült

2026

Ingatlan állapot

kívül: kitűnő
belül: kitűnő

Szigetelés

15 cm

Ablak szerkezete

3 rétegű thermoplan

Fűtés

hőszivattyús

Komfort

duplakomfort

Parkolás

van fedetlen felszíni beálló

Közműállapot

csatorna: bekötve
gáz: bekötve
villany: bekötve
víz: bekötve

Energetika

nincs megadva

Az időpont kérés naptár ikonja
HTML
Az időpont kérés naptár ikonja
PDF
Eladó új építésű ház
Ingatlan azonosító:
804_trb

Pest megye, Erdőkertes, Központ

Irányár

114.9 M Ft
(1.02 M Ft/㎡)

Szobák

5 szoba

Terület

113 m²

Telek terület

1000 m²
INGATLAN LEÍRÁSA
*** KÖZPONTHOZ KÖZELI, ASZFALTOS UTCÁBAN ***

Erdőkertes központhoz közeli részén, aszfaltos utcában, 1000 nm-es telekre épülő, egyszintes, nettó 113 nm-es, nappali + 4 szobás, dupla komfortos, 15 nm-es FEDETT TERASSZAL, felszíni gépkocsi beállóval rendelkező családi ház eladó.

Beruházó referencia munkái a közelben megtekinthetők!

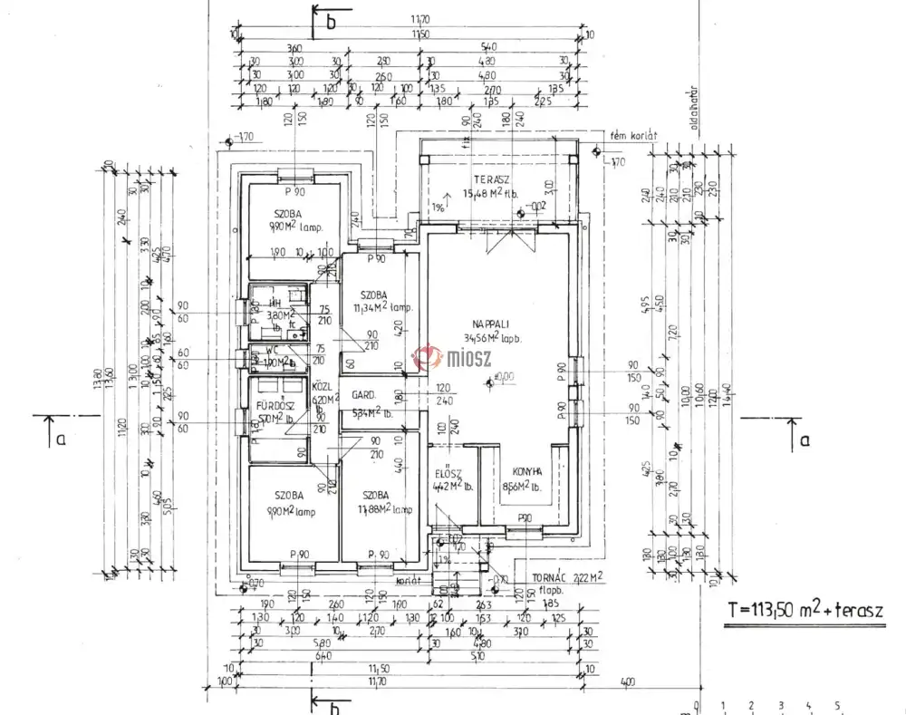
Elosztása:

fedett tornác 2,22 nm
előszoba 4,42 nm
közlekedő 6,20 nm
WC 1,90 nm
fürdő 5,70 nm
házt.h. 3,80 nm
gardrób 5,34 nm
konyha-étkező-nappali 43,12 nm
szoba 11,88 nm
szoba 11,34 nm
szoba 9,90 nm
szoba 9,90 nm
fedett terasz 15,48 nm

Műszaki leírás röviden:

*teherhordó fal PTH 30-as tégla
*belső válaszfalak 10 cm PTH
*15 cm-es homlokzati szigetelés szigetelés
*nyílászárók műanyag 3 rétegű, 5 légkamrás kivitel
*betongerendás födém
*Bramac tetőcserép
*fűtése hőszivattyú, padlófűtéssel (2 mFt-ig állja beruházó)
*utcafronti kerítés zsalukő erősített fa lécezés
*átadás 2026. III. név
*burkolatok, szaniterek, beltéri ajtók a műszaki leírásban meghatározott értékben választhatók
*jelenleg a telek tekinthető meg, fotókon ugyanilyen referencia ház is szerepel.

Hiteligény esetén az ügyintézést szakszerűen, gyorsan és DÍJMENTESEN biztosítjuk ügyfeleink számára, így a legkedvezőbb megoldást tudjuk kínálni az ingatlan megvásárlásához.

Várom megtisztelő érdeklődését, akár hétvégén is!

INGATLAN ADATAI

Ingatlan jellege
családi ház
Belső terület
113 m²
Telek terület
1000 m²
Tájolás
délkelet
Építési állapot
új
Építési mód
tégla
Szobák száma
5 szoba
Terasz
15 m²
Épület szintje
1.
Épült
2026
Ingatlan állapot
kívül: kitűnő
belül: kitűnő
Szigetelés
15 cm
Ablak szerkezete
3 rétegű thermoplan
Fűtés
hőszivattyús
Komfort
duplakomfort
Parkolás
van fedetlen felszíni beálló
Közműállapot
csatorna: bekötve
gáz: bekötve
villany: bekötve
víz: bekötve
Energetika
nincs megadva
TÉRKÉP

Pest megye, Erdőkertes, Központ

Hitelkalkulátor


KAPCSOLAT
Turzó Bettina
Turzó Bettina


+36 30 924 5445

turzobettina@gmail.com

KAPCSOLAT
Turzó Bettina

+36 30 924

turzobettina@

Az időpont kérés naptár ikonja
IDŐPONTOT KÉREK
A visszahívás kérés telefon ikonja egy azt körbe ölelő nyíllal
VISSZAHÍVÁST KÉREK
Ajánlom egy ismerősömnek ikon
AJÁNLOM EGY ISMERŐSÖMNEK
Facebook megosztás ikon
MEGOSZTÁS

KAPCSOLATFELVÉTEL

Küldés

Az üzenetet sikeresen elküldtük!
Hiba történt!
INGATLAN ADATAI

Ingatlan jellege

családi ház

Belső terület

113 m²

Telek terület

1000 m²

Tájolás

délkelet

Építési állapot

új

Építési mód

tégla

Szobák száma

5 szoba

Terasz

15 m²

Épület szintje

1.

Épült

2026

Ingatlan állapot

kívül: kitűnő
belül: kitűnő

Szigetelés

15 cm

Ablak szerkezete

3 rétegű thermoplan

Fűtés

hőszivattyús

Komfort

duplakomfort

Parkolás

van fedetlen felszíni beálló

Közműállapot

csatorna: bekötve
gáz: bekötve
villany: bekötve
víz: bekötve

Energetika

nincs megadva

Az időpont kérés naptár ikonja
HTML
Az időpont kérés naptár ikonja
PDF
Pest megye - Erdőkertes
Pest megye - Erdőkertes
Pest megye - Erdőkertes
Pest megye - Erdőkertes
Pest megye - Erdőkertes
Pest megye - Erdőkertes