Eladó új építésű ház - Erdőkertes

KAPCSOLAT
Turzó Bettina


+36 30 924 5445

turzobettina@

Az időpont kérés naptár ikonja
IDŐPONTOT KÉREK
A visszahívás kérés telefon ikonja egy azt körbe ölelő nyíllal
VISSZAHÍVÁST KÉREK
Ajánlom egy ismerősömnek ikon
AJÁNLOM EGY ISMERŐSÖMNEK
Facebook megosztás ikon
MEGOSZTÁS

KAPCSOLATFELVÉTEL

Küldés

Az üzenetet sikeresen elküldtük!
Hiba történt!
INGATLAN ADATAI

Ingatlan jellege

családi ház

Belső terület

113 m²

Telek terület

775 m²

Tájolás

északkelet

Építési állapot

új

Építési mód

tégla

Szobák száma

5 szoba

Terasz

16 m²

Épület szintje

földszintes.

Épült

2025

Ingatlan állapot

kívül: kitűnő
belül: kitűnő

Klíma

előkészítve

Szigetelés

15 cm

Ablak szerkezete

3 rétegű thermoplan

Fűtés

cirko

Komfort

duplakomfort

Parkolás

van fedett felszíni beálló

Közműállapot

csatorna: bekötve
gáz: bekötve
villany: bekötve
víz: bekötve

Energetika

A+ 2024:

Az időpont kérés naptár ikonja
HTML
Az időpont kérés naptár ikonja
PDF
Eladó új építésű ház
Ingatlan azonosító:
799_trb

Pest megye, Erdőkertes, Kilencholdas

Irányár

107.9 M Ft
(954.87 E Ft/㎡)

Szobák

5 szoba

Emelet

félemelet

Terület

113 m²

Telek terület

775 m²
INGATLAN LEÍRÁSA
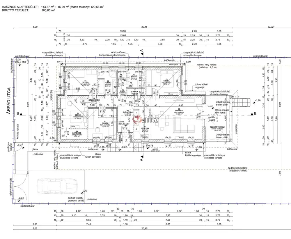
Eladó Erdőkertes kedvelt, családi házas részén, 775 nm-es telekre épülő, egyszintes, nettó 113 nm-es, nappali + 4 szobás, 16 nm-es FEDETT terasszal rendelkező önálló családi ház!

Beruházó referencia házai a közelben megtekinthetők!

Elosztása:

előszoba 5,22 nm
közlekedő 5,72 nm
közlekedő 1,75 nm
WC 1,15 nm
fürdő 6,60 nm
fürdő 4,41 nm
kamra 1,68 nm
konyha 6,87 nm
nappali-étkező 31,23 nm
gardrób 3,72 nm
szoba 12,06 nm
szoba 11,55 nm
szoba 10,91 nm
szoba 10,50 nm
fedett terasz 16,29 nm

Műszaki leírás röviden:
*tartófal PTH 30-as síkra csiszolt tégla
*válaszfal PTH 10-es tégla
*15 cm-es homlokzati szigetelés
*fűtése gáz cirkó, padlófűtéssel (hőszivattyú, napelem megbeszélés tárgya)
*utcafronti kerítés zsalukő pillérekre erősített fa lécezés
*átadás 2026. tavasz
*nyílászárók műanyag 3 rétegű, 5 légkamrás kivitel
*beton cserép
*hideg-, meleg burkolatok, beltéri ajtók, szaniterek meghatározott értékben választhatók
*a fotókon egy előző, referencia ház is látható!

Hiteligény esetén az ügyintézést szakszerűen, gyorsan és DÍJMENTESEN biztosítjuk ügyfeleink számára, így a legkedvezőbb megoldást tudjuk kínálni az ingatlan megvásárlásához.

Várom megtisztelő érdeklődését, akár hétvégén is!

INGATLAN ADATAI

Ingatlan jellege
családi ház
Belső terület
113 m²
Telek terület
775 m²
Tájolás
északkelet
Építési állapot
új
Építési mód
tégla
Szobák száma
5 szoba
Terasz
16 m²
Épület szintje
földszintes.
Épült
2025
Ingatlan állapot
kívül: kitűnő
belül: kitűnő
Klíma
előkészítve
Szigetelés
15 cm
Ablak szerkezete
3 rétegű thermoplan
Fűtés
cirko
Komfort
duplakomfort
Parkolás
van fedett felszíni beálló
Közműállapot
csatorna: bekötve
gáz: bekötve
villany: bekötve
víz: bekötve
Energetika
A+ 2024:
TÉRKÉP

Pest megye, Erdőkertes, Kilencholdas

Hitelkalkulátor


KAPCSOLAT
Turzó Bettina
Turzó Bettina


+36 30 924 5445,

turzobettina@gmail.com

KAPCSOLAT
Turzó Bettina

+36 30 924 5445

turzobettina@

Az időpont kérés naptár ikonja
IDŐPONTOT KÉREK
A visszahívás kérés telefon ikonja egy azt körbe ölelő nyíllal
VISSZAHÍVÁST KÉREK
Ajánlom egy ismerősömnek ikon
AJÁNLOM EGY ISMERŐSÖMNEK
Facebook megosztás ikon
MEGOSZTÁS

KAPCSOLATFELVÉTEL

Küldés

Az üzenetet sikeresen elküldtük!
Hiba történt!
INGATLAN ADATAI

Ingatlan jellege

családi ház

Belső terület

113 m²

Telek terület

775 m²

Tájolás

északkelet

Építési állapot

új

Építési mód

tégla

Szobák száma

5 szoba

Terasz

16 m²

Épület szintje

földszintes.

Épült

2025

Ingatlan állapot

kívül: kitűnő
belül: kitűnő

Klíma

előkészítve

Szigetelés

15 cm

Ablak szerkezete

3 rétegű thermoplan

Fűtés

cirko

Komfort

duplakomfort

Parkolás

van fedett felszíni beálló

Közműállapot

csatorna: bekötve
gáz: bekötve
villany: bekötve
víz: bekötve

Energetika

A+ 2024:

Az időpont kérés naptár ikonja
HTML
Az időpont kérés naptár ikonja
PDF
Pest megye - Erdőkertes
Pest megye - Erdőkertes
Pest megye - Erdőkertes
Pest megye - Erdőkertes
Pest megye - Erdőkertes
Pest megye - Erdőkertes
Pest megye - Erdőkertes
Pest megye - Erdőkertes
Pest megye - Erdőkertes
^